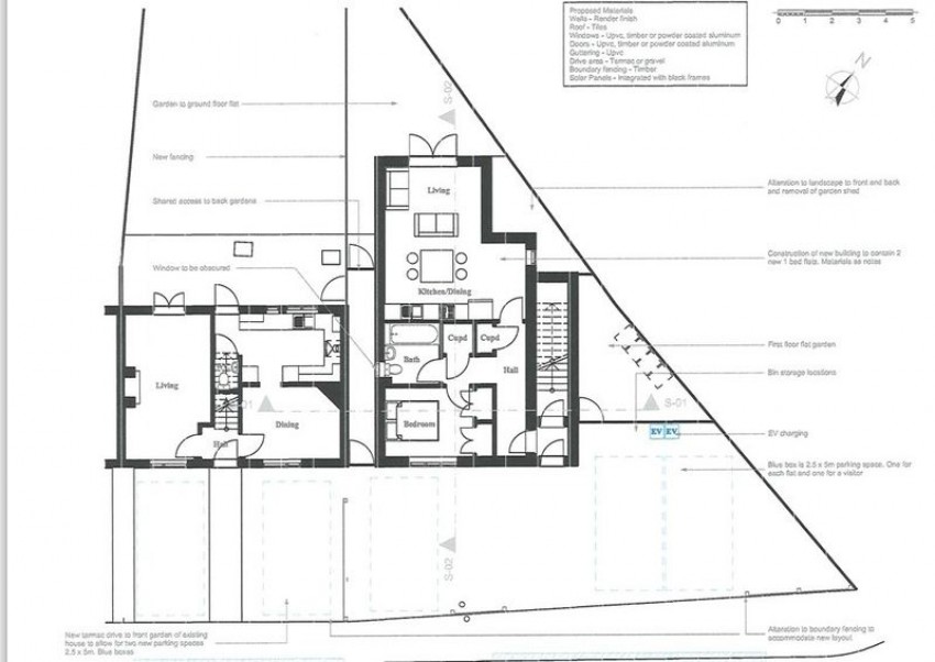
A building plot with approved planning permission with conditions for two new one bedroom apartments. These properties will offer open plan living dining kitchen, one double bedroom, allocated...
A building plot with approved planning permission with conditions for two new one bedroom apartments. These properties will offer open plan living dining kitchen, one double bedroom, allocated parking and a private garden for each property. There will be a double bedroom with two double built in wardrobes, a bathroom and ample storage. In the ground floor apartment the open plan living dining kitchen has patio doors out to the rear garden, the first floor apartment having it own garden to the side of the properties. The plot also includes allocated parking for both the properties, EV Charging points and solar panels. Application number PL/2025/04025
LOCATION The plot is placed within level walking distance of the town centre and local surrounding amenities.
AREAS CLOSE BY The town of Calne is surrounded by some of the most beautiful countryside Wiltshire has to offer. There are also local historic sites Avebury, Bowood House and the surrounding towns include Marlborough, Devizes with the Caen Hill Locks and canal, Chippenham and Royal Wootten Bassett both providing easy access to the M4.
ADJACENT HOME The plot was formally part of the neighbouring semi detached property.
If you have any questions or require further information do please get in touch.
Highlights
Approved Planning With Conditions
Two One Bedroom Apartments
Open Plan Living
Bedroom With Fitted Wardrobes
Private Gardens
Allocated Parking
EV Charging Points
Walking Distance To The Town And Surrounding Amenities.